Cazan pe combustibil solid KRONAS STANDART, 22kw
In stoc
Preturile indicate sunt orientative. Costul final al produsului este confirmat de manager in timpul procesarii comenzii
Producator
KRONAS
Suprafata incalzita, m²
220
Putere, kW
22
Incarcarea combustibilului
manuala
Randament, %
85
Masa, kg
214
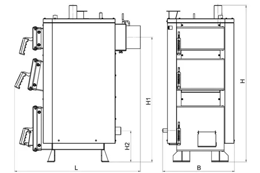
Dimensiuni (L x I x A), mm
560x1255x1081
Material schimbator de caldura
Otel
Grosimea metalului, mm
5
Tip de combustibil
lemn de foc, cărbune, brichete
Diametrul cosului de fum, mm
180
Turbina
da
Automatizare
da
Garantie, luni
36












